Dịch vụ vẽ phối cảnh kiến trúc uy tín tại TPHCM
Vẽ phối cảnh kiến trúc là khâu không thể thiếu trước khi triển khai dự án kiến trúc. Một công trình kiến trúc có […]
Vẽ phối cảnh kiến trúc là khâu không thể thiếu trước khi triển khai dự án kiến trúc. Một công trình kiến trúc có […]
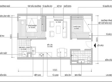
Bản vẽ thiết kế 2D kiến trúc đóng vai trò quan trọng khi thi công xây dựng công trình. Để đảm bảo về chất
Để có một công trình chất lượng như ý muốn thì bản vẽ thiết kế 2D kiến trúc có vai trò khá quan trọng. Tuy nhiên
Chuyên thiết kế 2D kiến trúc chuyên nghiệp, giá rẻ Chi tiết »
Thiết kế 2D kiến trúc hiện nay là dịch vụ đã quá quen thuộc đối với hầu hết mọi người khi cần xây dựng